Руководство по обслуживанию и ремонту Honda Jazz/Fit
2 поколения


Honda Jazz/Fit

  • Общая информация
  • Спецификация
  • График техобслуживания
  • Двигатель
  • Топливо и система снижения токсичности
  • Трансмиссия
  • Рулевое управление
  • Подвеска
  • Тормозная система
  • HVAC (Система отопителя, вентилятора, кондиционера)
  • Кузов
  • Средства безопасности
  • Поиск неисправностей DTC
  • Схемы электропроводки

  • Работа (двигатель L15A7)


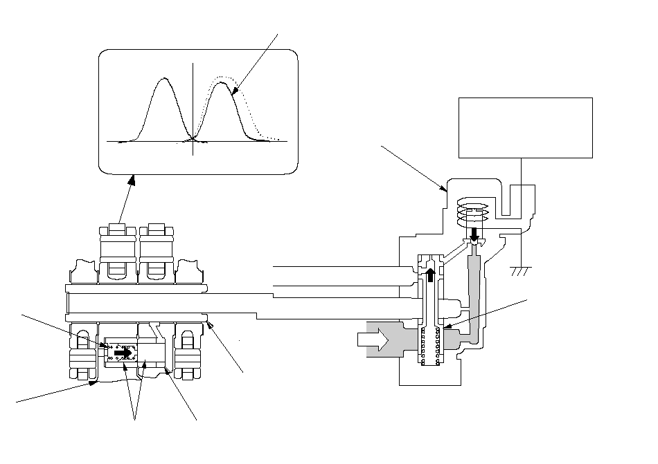
    При низкой частоте вращения вала двигателя

    На низкой частоте вращения вала двигателя блок ECM/PCM выключает электромагнитный клапан управления маслом коромысла. Давление масла с электромагнитного клапана управления маслом коромысла не поступает в вал коромысел впускного клапана. Оба коромысла поднимаются кулачком низкого подъема.

    EX

    IN

    ФАЗЫ ГАЗОРАСПРЕДЕЛЕНИЯ КЛАПАНОВ

    ДАВЛЕНИЕ
    МАСЛА

    КЛАПАН

    ЭЛЕКТРОМАГНИТНЫЙ КЛАПАН
    УПРАВЛЕНИЯ МАСЛОМ
    КОРОМЫСЛА

    Блок ECM/PCM

    ВПУСКНОЙ КЛАПАН 1,
    ВПУСКНОЙ КЛАПАН 2

    ВОЗВРАТНАЯ
    ПРУЖИНА

    УГОЛ

    LIFT (подъем)

    ПЕРЕКЛЮЧАЮЩИЙ
    ПОРШЕНЬ
    СИСТЕМЫ VTEC

    ВАЛ КОРОМЫСЕЛ
    ВПУСКНЫХ КЛАПАНОВ

    ПЕРВИЧНЫЕ КОРОМЫСЛА
    ВПУСКНОГО КЛАПАНА

    ВТОРИЧНОЕ
    КОРОМЫСЛО ВПУСКНОГО КЛАПАНА

    }

    При высокой частоте вращения вала двигателя

    На высокой частоте вращения вала двигателя блок ECM/PCM включает электромагнитный клапан управления маслом коромысла. Давление масла с электромагнитного клапана управления маслом коромысла во вторичное коромысло впускных клапанов через вал коромысел впускного клапана и перемещает управляющий поршень в коромысле.
    Вследствие этого управляющий поршень скользит в первичное впускное коромысло, замыкая коромысла. Оба коромысла поднимаются кулачком высокого подъема.

    EX

    IN

    ФАЗЫ ГАЗОРАСПРЕДЕЛЕНИЯ КЛАПАНОВ

    ДАВЛЕНИЕ
    МАСЛА

    КЛАПАН

    ЭЛЕКТРОМАГНИТНЫЙ КЛАПАН
    УПРАВЛЕНИЯ МАСЛОМ
    КОРОМЫСЛА

    Блок ECM/PCM

    ВПУСКНОЙ КЛАПАН 1,
    ВПУСКНОЙ КЛАПАН 2

    LIFT (подъем)

    ВАЛ КОРОМЫСЕЛ
    ВПУСКНЫХ КЛАПАНОВ

    УГОЛ

    ВОЗВРАТНАЯ
    ПРУЖИНА

    ПЕРЕКЛЮЧАЮЩИЙ
    ПОРШЕНЬ
    СИСТЕМЫ VTEC

    ПЕРВИЧНЫЕ КОРОМЫСЛА
    ВПУСКНОГО КЛАПАНА

    ВТОРИЧНОЕ
    КОРОМЫСЛО ВПУСКНОГО КЛАПАНА

    }