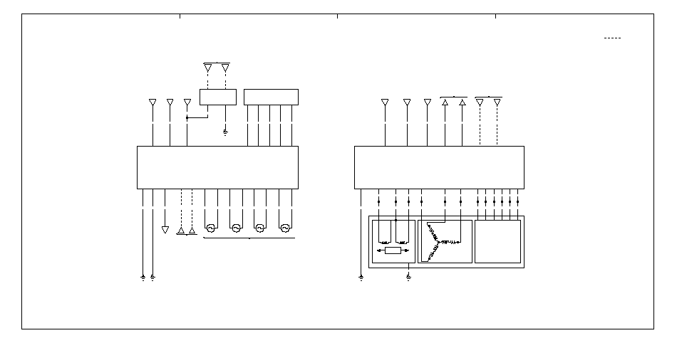
Схема электропроводки
РУЛЕВОГО КОЛЕСА
№ 3 (20 A)
(ABS FSR)
(1−A)
№ 3 (40 A)
(ABS MTR)
(1−A)
№ 4
(7,5 A) (2−В)
УГЛА/ПОПЕРЕЧНОГО
УСКОРЕНИЯ АВТОМОБИЛЯ
ПЕРЕДАЧИ
ДАННЫХ
(3−D)
№ 4
(7,5 A) (2−В)
№ 1 (70 A) (EPS)
(1−A)
(3−A)
ПЕРЕДАЧИ ДАННЫХ
(3−D)
ЭЛЕКТРОДВИГАТЕЛЯ
ПЕРЕДАЧИ ДАННЫХ (3−D)
БЛОК УПРАВЛЕНИЯ EPS (11−С)
ПРИБОРАМИ (ТАХОМЕТР)
(4−А)
МОДУЛЯТОР VSA (11−B)
МОДУЛЯТОР VSA (11−B)
ПРИБОРАМИ (ТАХОМЕТР)
(4−А)
УСКОРЕНИЯ
(11−В)
ПЕРЕДАЧИ ДАННЫХ (3−D)
ПОПЕРЕЧНОГО
УСКОРЕНИЯ (11−В)
БЛОК УПРАВЛЕНИЯ EPS (11−С)
ПЕРЕДАЧИ ДАННЫХ (3−D)
ПРИБОРАМИ (ТАХОМЕТР)
(4−А)


