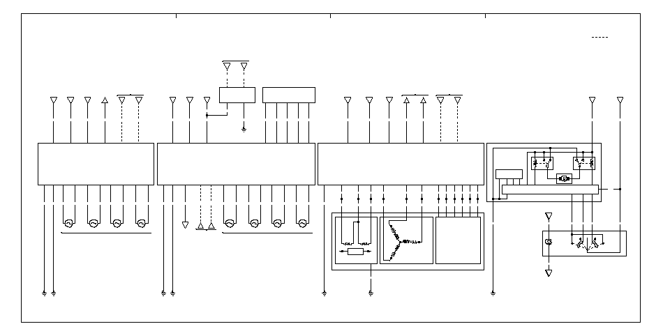
Схема электропроводки
РУЛЕВОГО КОЛЕСА
№ 3 (40 A)
(ABS MTR)
(1−A)
№ 3 (20 A)
(ABS FSR)
(1−A)
№ 4
(7,5 A) (2−В)
ПЕРЕДАЧИ ДАННЫХ
(3−D)
ПРИБОРАМИ (ТАХОМЕТР)
(4−А)
№ 3 (20 A)
(ABS FSR)
(1−A)
№ 3 (40 A)
(ABS MTR)
(1−A)
№ 4
(7,5 A) (2−В)
УГЛА/ПОПЕРЕЧНОГО
УСКОРЕНИЯ АВТОМОБИЛЯ
ПЕРЕДАЧИ
ДАННЫХ
(3−D)
№ 4
(7,5 A) (2−В)
№ 1 (70 A) (EPS)
(1−A)
(3−A)
ПЕРЕДАЧИ ДАННЫХ
(3−D)
ЭЛЕКТРОДВИГАТЕЛЯ
ПРЕДОХРАНИТЕЛЬ
№ 24 (20 A) (2−С)
(10−C)
БЛОК УПРАВЛЕНИЯ EPS (11−С)
ПЕРЕДАЧИ ДАННЫХ (3−D)
ПЕРЕДАЧИ ДАННЫХ (3−D)
БЛОК УПРАВЛЕНИЯ EPS (11−С)
ПРИБОРАМИ (ТАХОМЕТР)
(4−А)
МОДУЛЯТОР VSA (11−B)
МОДУЛЯТОР VSA (11−B)
ПРИБОРАМИ (ТАХОМЕТР)
(4−А)
УСКОРЕНИЯ
(11−В)
ПЕРЕДАЧИ ДАННЫХ (3−D)
МОДУЛЯТОР ABS (11−A)
УСКОРЕНИЯ
(11−В)
ПРИБОРАМИ (ТАХОМЕТР)
(4−А)
БЛОК УПРАВЛЕНИЯ EPS (11−С)
ПЕРЕДАЧИ ДАННЫХ (3−D)
№ 14
(7,5 A) (2−D)
ПОДСВЕТКИ
ПАНЕЛИ УПРАВЛЕНИЯ
(5−B)


