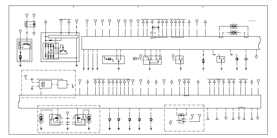
Схема электропроводки
ЗВУКОВОГО СИГНАЛА (12−A)
СИГНАЛЫ
(12−A)
ВЫКЛЮЧАТЕЛЬ
ПРИБОРОВ
ОСВЕЩЕНИЯ (6−C, D)
СИГНАЛ
ОБГОНА
СВЕТА ФАР
(Звуковой
сигнал)
СТЕКЛООЧИСТИТЕЛЯ/
ОМЫВАТЕЛЯ ВЕТРОВОГО
СТЕКЛА (7−C)
(Звуковой
сигнал)
(Звуковой
сигнал)
(Омывание)
(ВЫКЛЮЧАТЕЛЬ)
ПРЕДОХРАНИТЕЛЬ
№ 38 (30 A) (2−В)
ОМЫВАТЕЛЯ
ВЕТРОВОГО
СТЕКЛА
(7−D)
СТЕКЛООЧИСТИТЕЛЯ
ВЕТРОВОГО СТЕКЛА (7−C)
ПРЕДОХРАНИТЕЛЬ
№ 21 (2−D)
ПРЕДОХРАНИТЕЛЬ
№ 18 (20 A) (2−D)
ПРЕДОХРАНИТЕЛЬ
№ 13 (10 A) (2−C)
ПРЕДОХРАНИТЕЛЬ
№ 12 (10 A) (2−C)
ПРЕДОХРАНИТЕЛЬ
№ 19 (15 A) (2−D)
№ 15
(7,5 A) (2−C)
№ 14
(7,5 A) (2−C)
ПРЕДОХРАНИТЕЛЬ
№ 21 (15 A) (1−А)
КРУИЗ-КОНТРОЛЯ (5−A)
ПЕРЕКЛЮЧАТЕЛЯ ПОЛОЖЕНИЙ
SELECT/RESET/INFORMATION (4−C)
РЕГУЛИРОВКОЙ
СВЕТА ФАР (6−D)
ВЫКЛЮЧАТЕЛЬ
ПРИБОРОВ
ОСВЕЩЕНИЯ (6−C, D)
№ 16 (2−C)
№ 17 (2−C)
ПЕРЕДНИХ/ЗАДНИХ
ПРОТИВОТУМАННЫХ
ФОНАРЕЙ (6−С)
ОТКРЫТОЙ
ДВЕРИ
ВОДИТЕЛЯ
(Замкнут:
дверь
открыта)
ЗАМКА
ДВЕРИ
ПЕРЕДНЕГО
ПАССАЖИРА
Замкнут:
дверь открыта)
ОТКРЫТОЙ
ДВЕРИ
ПЕРЕДНЕГО
ПАССАЖИРА
(Замкнут: Рычаг
стояночного
тормоза
задействован)
(7−A)
ГОСУДАРСТВЕННОГО
РЕГИСТРАЦИОННОГО ЗНАКА (7−A)
№ 15
(7,5 A) (2−D)
№ 7 (10 A) (2−C)
ПОЛОЖЕНИЯ
ПЕДАЛИ
ТОРМОЗА
(7−C)
ПРИБОРАМИ (ТАХОМЕТР)
(4−B)
ДИСТАНЦИОННОГО УПРАВЛЕНИЯ
(8−А)
КЛИМАТ-КОНТРОЛЕМ (9−D)
АВТОМАТИЧЕСКОГО
ВКЛЮЧЕНИЯ СВЕТА/
ДАТЧИК ДОЖДЯ (6−D)
СИСТЕМОЙ HANDS−FREE (14−С)
ПЕРЕДАЧИ
ДАННЫХ
(3−D)
ПЕРЕДНИХ
ПРОТИВОТУМАННЫХ
ФАР (7−A)
(13−A)
УПРАВЛЕНИЯ
КЛИМАТ-КОНТРОЛЕМ
(9−С)
ДАТЧИК
СУПЕРБЛОКИРОВКИ
СУПЕРБЛОКИРОВКИ
ЗАМКА
СУПЕРБЛОКИРОВКИ
ПЕРЕДНЕЙ ДВЕРИ
ПАССАЖИРА
СУПЕР
БЛОКИРОВКИ
ДВЕРИ
ВОДИТЕЛЯ
№ 16 (15 A)
(1−С)
ОХРАННОЙ СИГНАЛИЗАЦИИ
№ 25 (20 A) (2−С)
№ 20
(7,5 A) (2−D)
ИММОБИЛАЙЗЕРА
ДИСТАНЦИОННОГО
УПРАВЛЕНИЯ
(8−А)
ВКЛЮЧЕНИЯ
ДНЕВНЫХ ХОДОВЫХ
ОГНЕЙ
(3−D)
КАПОТА
(Замкнут:
капот открыт)
ОТКРЫТОЙ ДВЕРИ
ВОДИТЕЛЯ
(дверь закрыта:
Рычаг
стояночного
тормоза
задействован)
предохранителей/реле)
предохранителей/реле)
предохранителей/
реле)
предохранителей/
реле)
предохранителей/
реле)
предохранителей/
реле)
предохранителей/
реле)
предохранителей/
реле)
предохранителей/
реле)
КЛАПАН
(Аварийная
сигнализация)
(Аварийная
сигнализация)
МОТОРНОГО ОТСЕКА
ПОД ПАНЕЛЬЮ ПРИБОРОВ
ПРЕРЫВАЮЩЕЕ
ПОДАЧУ
ТОКА НА
СТАРТЕР 2
БЛОКИРОВКИ
(2−A)
БАТАРЕЯ
(1−A)
ПРЕРЫВАЮЩЕЕ
ПОДАЧУ ТОКА
НА СТАРТЕР 1
(2−С)
ЗАПУСКА
ДВИГАТЕЛЯ(2−B)
№1 (BAT) (100 A)
(1−A)
№ 37
(7,5 A) (2−В)
№ 10
(7,5 A) (2−В)
№ 35
(7,5 A) (2−C)
МЕСТНОГО
ОСВЕЩЕНИЯ
(7−B)
ЗАМКА
ЗАЖИГАНИЯ
(8−A)
ПЛАФОН
(7−B)
БАГАЖНОГО
ОТДЕЛЕНИЯ
(7−B)
ПРЕДОХРАНИТЕЛЬ
№ 22 (10 A) (1−А)
АВАРИЙНОЙ
СИГНАЛИЗАЦИИ
(7−B)
СИГНАЛА
ПОВОРОТА (6−C)
ПОВОРОТА (6−B) (7−B, C, D)
ПОВОРОТА (6−B) (7−B, D)
СОЛНЦЕЗАЩИТНОГО КОЗЫРЬКА
(11−D)
ВЫКЛЮЧАТЕЛЬ
СТЕКЛОПОДЪЕМНИКОВ
(8−D)
ПРЕДОХРАНИТЕЛЬ
№ 25 (20 A) (2−С)
ЗАМКА ДВЕРИ
ВОДИТЕЛЯ
БЛОКИРОВКИ
ДВЕРИ
БЛОКИРОВКИ
ЗАМКА ДВЕРИ
ВОДИТЕЛЯ
ЦИЛИНДРА
ЗАМКА ДВЕРИ
ВОДИТЕЛЯ
БЛОКИРОВКИ
ДВЕРИ
БЛОКИРОВКИ
ЗАМКА ДВЕРИ
ПАССАЖИРА СПЕРЕДИ
ЗАМКА
ДВЕРИ БАГАЖНОГО
ОТДЕЛЕНИЯ
ДВЕРИ
БАГАЖНОГО
ОТДЕЛЕНИЯ
ЗАМКА
ДВЕРИ
БАГАЖНОГО
ОТДЕЛЕНИЯ
(Замкнут:
Дверь
багажного
отделения
открыта)
№ 3
(2−В)
ПРОТИВОТУМАННЫЙ ФОНАРЬ
(7−A)
СИГНАЛ
ОХРАННОЙ
СИГНАЛИЗАЦИИ
ЗАМКА ЗАЖИГАНИЯ
(8−A)
№ 16 (15 A)
(1−С)
предохранителей/
реле)
предохранителей/
реле)
предохранителей/
реле)
предохранителей/реле)


