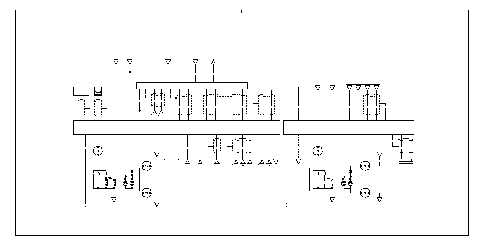
Схема электропроводки
МИКРОФОНА
№ 14
(7,5 A) (2−D)
ПОДСВЕТКИ
ПАНЕЛИ УПРАВЛЕНИЯ
(5−B)
№ 14
(7,5 A) (2−D)
ВКЛЮЧЕНИЯ
ПЕРЕДАЧИ
ЗАДНЕГО ХОДА
(7−C)
АУДИОБЛОК
(13−A)
№ 14
(7,5 A) (2−D)
(13−B, C)
КЛИМАТ-КОНТРОЛЕМ
(9−D)
(13−B)
НАБОР
(13−C)
ПРОВЕРКИ (SCS)
СИСТЕМЫ
НАВИГАЦИИ
АНТЕННА ОКНА
(FM)
РАДИОПРИЕМНИКА
НА РУЛЕВОМ КОЛЕСЕ
(13−B)
ГОЛОСОВОГО
УПРАВЛЕНИЯ
ПОДСВЕТКИ
ПАНЕЛИ УПРАВЛЕНИЯ
(5−B)
(LED)
ПРУЖИНЕ
ПРУЖИНЫ
(LED)
ГОЛОСОВОГО
УПРАВЛЕНИЯ HFL
РАДИОПРИЕМНИКА
НА РУЛЕВОМ КОЛЕСЕ
(13−B)
№ 35
(7,5 A) (2−C)
№ 16 (15 A)
(1−С)
№ 16 (15 A)
(1−С)
№ 16 (15 A)
(1−С)
№ 35
(7,5 A) (2−C)
(13−A)
УПРАВЛЕНИЯ
РЕГУЛЯТОРОМ
ФАР (6−D)
ИММОБИЛАЙЗЕРА
ДИСТАНЦИОННОГО
УПРАВЛЕНИЯ (8−А)
УПРАВЛЕНИЯ
ПРИБОРАМИ
(ТАХОМЕТР)
(4−B)
УПРАВЛЕНИЯ
КЛИМАТ-
КОНТРОЛЕМ (9−D)
АВТОМАТИЧЕСКОГО
ВКЛЮЧЕНИЯ СВЕТА/
ДАТЧИК
ДОЖДЯ (6−D)


