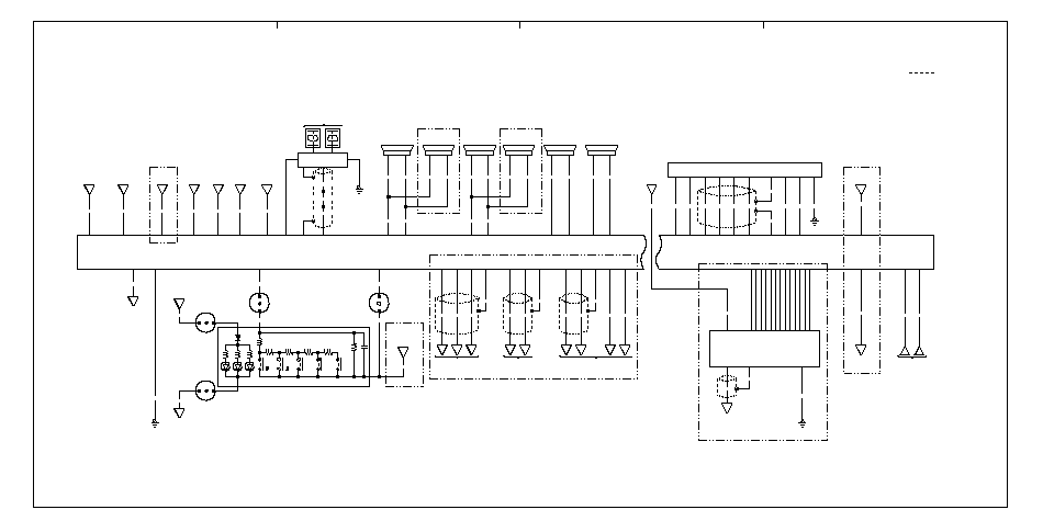
Схема электропроводки
НА РУЛЕВОМ КОЛЕСЕ
(ЗВУК)
(ЗВУК)
ДИСПЛЕЙ
LCD
BL+
ЭКРАН
GND
BUS+
BUS−
ЭКРАН
GND
ИКОНКА
MUTE
SIG−
SIG+
SIG
ЭКРАН
ДИСПЛЕЙ
LCD
BL−
ДИСПЛЕЙ
CE
ДИСПЛЕЙ
ДАННЫЕ
ДИСПЛЕЙ
ЧАСЫ
ДИСПЛЕЙ
RST
ДИСПЛЕЙ
ЭКРАН
ДИСПЛЕЙ
5 В
ДИСПЛЕЙ
GND
УПРАВЛЕНИЯ СИСТЕМОЙ HANDS−FREE
(14−С, В)
ПРОВОДА
ПРОВОДА
ДИСПЛЕЙ
(14−B)
№ 14
(7,5 A) (2−D)
ПОДСВЕТКИ
ПАНЕЛИ УПРАВЛЕНИЯ
(5−B)
НАВИГАЦИИ (14−B)
ДИНАМИК ДВЕРИ
ВЫСОКОЧАСТОТНЫЙ
ДИНАМИК
ДИНАМИК ДВЕРИ
ЗАДНИЙ
ВЫСОКОЧАСТОТНЫЙ
ДИНАМИК
ВЫСОКОЧАСТОТНЫЙ
ДИНАМИК
ЗАДНИЙ
ВЫСОКОЧАСТОТНЫЙ
ДИНАМИК
НАВИГАЦИИ (14−B)
№ 14
(7,5 A) (2−D)
(УСИЛИТЕЛЬ)
ПОДСВЕТКИ
ПАНЕЛИ УПРАВЛЕНИЯ
(5−B)
№ 14
(7,5 A) (2−D)
ПРОВОДА
ПРОВОДА
ПОДСВЕТКИ
ПАНЕЛИ УПРАВЛЕНИЯ
(5−B)
ДИСПЛЕЙ
(14−B)
ГОЛОСОВОГО
УПРАВЛЕНИЯ/
ПЕРЕКЛЮЧАТЕЛЬ −
ГОЛОСОВОГО
УПРАВЛЕНИЯ
HFL(14−A, C)
№ 16 (15 A)
(1−С)
№ 35
(7,5 A) (2−C)
№ 35
(7,5 A) (2−C)
УПРАВЛЕНИЯ КЛИМАТ-КОНТРОЛЕМ (9−D)
MICU
(10−D)
ПЕРЕДАЧИ
ДАННЫХ
(3−D)
УПРАВЛЕНИЯ
РЕГУЛЯТОРОМ
ФАР (6−D)
НАВИГАЦИИ (14−B, C)


