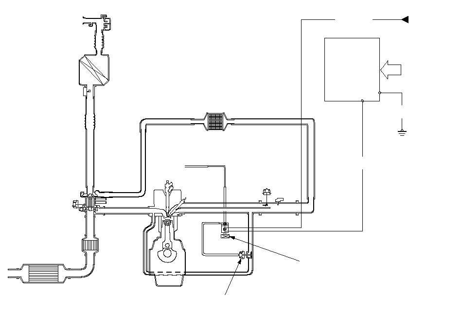
Схема системы рециркуляции отработавших газов (EGR)
Система EGR снижает содержание окислов азота (NOx) в отработавших газах за счет перепуска части отработавших газов через клапан системы EGR и впускной коллектор в камеру сгорания. В память блока ЕСМ занесены зависимости оптимального положения клапана системы EGR для широкого диапазона условий работы двигателя.
СИСТЕМЫ РЕЦИРКУЛЯЦИИ ОТРАБОТАВШИХ ГАЗОВ (EGR)
ДАТЧИКИ
ГЛАВНОМУ РЕЛЕ
PGM-FI
ВАКУУМНОМУ
НАСОСУ


