Руководство по обслуживанию и ремонту Honda Civic 3D
8 поколения


Honda Civic Civic 3D

  • Общая информация
  • Спецификация
  • График техобслуживания
  • Двигатель
  • Топливо и система снижения токсичности
  • Трансмиссия
  • Рулевое управление
  • Подвеска
  • Тормозная система
  • HVAC (Система отопителя, вентилятора, кондиционера)
  • Кузов
  • Средства безопасности
  • Поиск неисправностей DTC
  • Схемы электропроводки

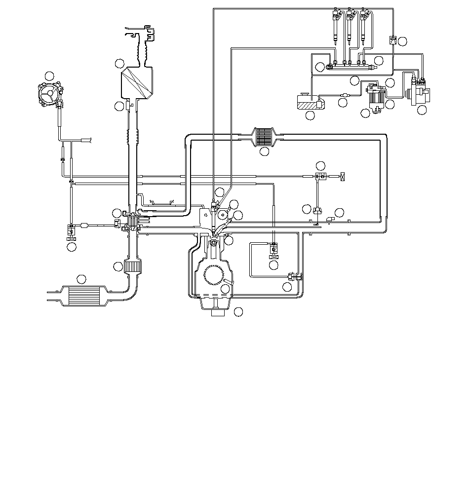
  • Распределение вакуума

    Модель без DPF

    6

    7

    1

    3

    2

    4

    5

    12

    11

    10

    9

    8

    13

    19

    20

    22

    21

    26

    24

    28

    23

    27

    25

    15

    17

    16

    18

    14

    29

    ВАКУУМНЫЙ НАСОС

    ЭЛЕКТРОМАГНИТНЫЙ КЛАПАН УСИЛЕНИЯ ТУРБОНАГНЕТАТЕЛЯ

    ТУРБОНАГНЕТАТЕЛЬ

    ТРЕХСТОРОННИЙ КАТАЛИТИЧЕСКИЙ НЕЙТРАЛИЗАТОР ПОДОГРЕВА (WU-TWC)

    (1)

    (2)

    (3)

    (4)

    (5)

    (6)

    (7)

    (8)

    (9)

    (10)

    (11)

    (12)

    (13)

    (14)

    (15)

    (16)

    (17)

    (18)

    (19)

    (20)

    (21)

    (22)

    (23)

    (24)

    (25)

    (26)

    (27)

    (28)

    ТРЕХКОМПОНЕНТНЫЙ КАТАЛИТИЧЕСКИЙ НЕЙТРАЛИЗАТОР (TWC)

    ВОЗДУШНЫЙ ФИЛЬТР

    ДАТЧИК МАССЫ ВОЗДУШНОГО ПОТОКА (MAF)/
    1 ДАТЧИК ТЕМПЕРАТУРЫ ВОЗДУХА НА ВПУСКЕ (IAT)

    ИНЖЕКТОР

    ДАТЧИК ПОЛОЖЕНИЯ РАСПРЕДЕЛИТЕЛЬНОГО ВАЛА (СМР)

    СВЕЧА НАКАЛИВАНИЯ

    ДАТЧИК 1 ТЕМПЕРАТУРЫ ОХЛАЖДАЮЩЕЙ ЖИДКОСТИ (ECT)

    ДАТЧИК ПОЛОЖЕНИЯ КОЛЕНЧАТОГО ВАЛА (CKP)

    ПРОМЕЖУТОЧНЫЙ ОХЛАДИТЕЛЬ

    ЭЛЕКТРОМАГНИТНЫЙ КЛАПАН
    РЕЦИРКУЛЯЦИИ ОТРАБОТАВШИХ ГАЗОВ (EGR)

    КОНТРОЛЬНЫЙ ЭЛЕКТРОКЛАПАН РЕЦИРКУЛЯЦИИ ОТРАБОТАННЫХ ГАЗОВ (EGR)

    ЭЛЕКТРОМАГНИТНЫЙ КЛАПАН УПРАВЛЕНИЯ ШКИВОМ
    ВПУСКАЮЩЕГО КОЛЛЕКТОРА (IMRC)

    КЛАПАН УПРАВЛЕНИЯ ШКИВОМ ВПУСКНОГО КОЛЛЕКТОРА (IMRC)

    ДАТЧИК АБСОЛЮТНОГО ДАВЛЕНИЯ ВОЗДУХА ВО ВПУСКНОМ КОЛЛЕКТОРЕ (MAP)/
    2 ДАТЧИК ТЕМПЕРАТУРЫ ВОЗДУХА НА ВПУСКЕ (IAT)

    ТОПЛИВНЫЙ БАК

    ТОПЛИВОРАСПРЕДЕЛИТЕЛЬНАЯ РАМПА

    РУКОЯТКА ПРОКАЧКИ

    ДАТЧИК ДАВЛЕНИЯ ТОПЛИВОРАСПРЕДЕЛИТЕЛЬНОЙ РАМПЫ (FRP)

    НАГРЕВАТЕЛЬ ТОПЛИВА

    ДАТЧИК ТЕМПЕРАТУРЫ ТОПЛИВА

    ТОПЛИВНЫЙ ФИЛЬТР

    ПЕРЕКЛЮЧАТЕЛЬ УРОВНЯ ВОДЫ В ТОПЛИВНОМ ФИЛЬТРЕ

    ОБРАТНЫЙ КЛАПАН

    ТОПЛИВНЫЙ НАСОС

    (29)

    ДАТЧИК УРОВНЯ МОТОРНОГО МАСЛА

    }